Voor de Rotterdamse wijk Vreewijk is een bomenplan gemaakt. Hiermee tillen deelgemeente, woningcorporatie en bewoners het behoud en het beheer van oude en bijzondere bomen naar een hoger plan.

Een beeldbepalende Prunus in de voortuin aan de Lede. foto: Bleeker en Nauta landschaparchitecten

Een beeldbepalende Prunus in de voortuin aan de Lede. foto: Bleeker en Nauta landschaparchitecten

Bestaande bomen worden vaak niet in ontwerpen ingepast. Sterker nog, ontwerpers zien oude bomen vaak als sta-in-de-weg waardoor het totale groenvolume in de stad afneemt. Neem de herinrichting van de Binnenrotte. De gemeente heeft begin 2014 ingestemd met de ‘vergroening’ van dit plein, terwijl daarvoor de dubbele rij leiplatanen, ontworpen door Adriaan Geuze, zal verdwijnen. Vergroening staat tussen aanhalingstekens, want er staan straks minder bomen. Dat er gras en plantenbakken bijkomen is slechts kosmetische vergroening; de winst voor het stadsklimaat is te verwaarlozen.

De gemeente handelt hiermee niet volgens de eigen Bomenstructuurvisie. Daarin staat het belang van bomen voor het leefklimaat, stadsnatuur, kleur en biodiversiteit in de stad omschreven. Het plan schrijft een zorgvuldige omgang met monumentale en bijzondere bomen voor. Samen met partners in de stad poogt de gemeente de bomenstructuurvisie uit te voeren. Helaas blijft in de praktijk deze bomenstructuurvisie nogal eens in de la liggen als door de gemeente ingehuurde architectenbureaus aan het ontwerpen slaan.

Boomrijke situatie hoek Groenezoom - Frankendaal, in Vreewijk. foto: Bleeker en Nauta landschaparchitecten

Boomrijke situatie hoek Groenezoom – Frankendaal, in Vreewijk. foto: Bleeker en Nauta landschaparchitecten

Monumentale bomen

Bestaande bomen wordt vaak niet in het ontwerp ingepast. Oude bomen worden als sta-in-de-weg gezien. Met discutabele redenen – ze zagen er toch al niet meer zo vitaal uit – wordt dan aangestuurd op kap, om er daarna jonge boompjes, plantenbakken en gras voor terug te plaatsen. Het totale groenvolume neemt zo af.

Want: voor elke gekapte boom één jonge herplanten is niet genoeg om een stad groen te houden. Oude bomen doen zoveel meer voor een stad dan jonge. Niet alleen visueel, maar ook doen ze meer tegen hittestress, fijnstof en tegen wind- en wateroverlast. Deze kennis is er wel bij beslissende partijen, maar er wordt te weinig mee gedaan. Meer ‘boombewustzijn’ bij architecten en stadsbestuurders is daarom nodig.

Een dergelijk bewustzijn lijkt aanwezig in tuindorp Vreewijk, waar de bomen gezien worden als onlosmakelijke onderdelen van het beschermde stadsgezicht. De architectuur van deze wijk in Rotterdam-Zuid mag dan niet zo bijzonder zijn, de invulling van de buitenruimte is dat wel: zeer veel verschillende en ook monumentale bomen kom je er tegen, in straten, plantsoenen en tuinen. Deze bomen en de singels Lede en Langegeer zijn de structuurdragers van de wijk. Het belang van groen blijkt ook uit het feit dat er vroeger al een keuringscommissie voor tuinen was.

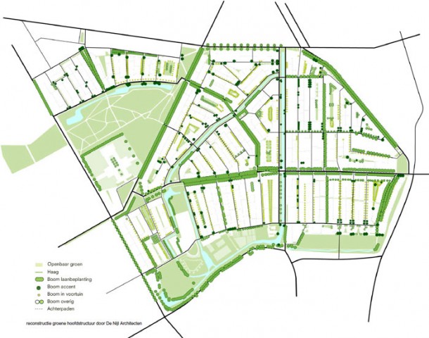
Reconstructie groene hoofdstructuur Vreewijk. beeld: de Nijl Architecten.

Reconstructie groene hoofdstructuur Vreewijk. beeld: de Nijl Architecten.

'Bomenbar', beeld: Sandra de Haan. www.sandradehaan.nl

‘Bomenbar’, beeld: Sandra de Haan. www.sandradehaan.nl

Slechte bescherming

Om het unieke karakter van de wijk te behouden is het Bomenplan Tuindorp Vreewijk opgesteld en in maart 2014 gepresenteerd. De status beschermd stadsgezicht betekent extra zorgvuldig beheer van het bomenbestand. Daar gaan Woningbouwcorporatie Havensteder, gebiedscommissie Feijenoord, de huurdersvereniging en de bewonersorganisatie samen voor zorgen.

Vreewijk bestaat bijna 100 jaar. Sindsdien is er natuurlijk veel veranderd, vooral door aanleg van parkeerplaatsen. In 1995 is met behulp van oude foto’s en mondelinge informatie van oude Vreewijkers de oorspronkelijke situatie van vlak na de bouw van Vreewijk gereconstrueerd. De zo opgedane kennis is meegenomen in het Bomenplan. Het Bomenplan is te gebruiken als handleiding die er onder andere voor zorgt dat aanvragen van kapvergunningen streng getoetst worden op allerlei punten. Pas als het echt niet anders kan, wordt een vergunning verleend. Het Bomenplan bevat gedetailleerde kaarten waarop alle beeldbepalende bomen aangegeven zijn. Goed inventariseren helpt bij conserveren. Conserveren is ook herplanten wanneer bomen uitvallen.

Bomen in particulier bezit – zogenoemde tuinbomen – mogen sinds 2013 zonder vergunning worden gekapt (ook de monumentale exemplaren), dus is het extra belangrijk vast te leggen wat de wijk aan waardevol groen bezit. Want als je niet weet wat je hebt, weet je ook niet wat je kunt verliezen. Aan de slechte bescherming van tuinbomen probeert de gebiedscommissie Feijenoord gelukkig iets te doen. In het Bomenplan Vreewijk staat: ‘Wij onderzoeken de mogelijkheid om de vergunningsplicht voor kap van particuliere bomen in Tuindorp Vreewijk heringevoerd te krijgen. Met name omdat het aantal koopwoningen toeneemt.’

Regels voor kap

Uit onderzoek is gebleken dat er 39 tuinbomen door particulieren zonder vergunning zijn gekapt tussen 2010 en 2012. Laat dit een wijze les zijn voor de gemeenteraad. Willen we een bomenbestand handhaven, dan zijn er regels nodig voor kap want veel mensen hebben weinig oog voor de waarde van hun tuinbomen.

Opvallend is de rol die corporatie Havensteder speelt. Nieuwe huurders moeten een tuinclausule ondertekenen waarin afspraken worden gemaakt over onderhoud van de tuin. Maximaal 33 procent van de tuin mag bestraat worden. Huurders moeten een stappenplan doorlopen als zij aangegeven een boom gekapt te willen zien. Zo wordt voorkomen dat er om onzinnige redenen gekapt wordt. Duidelijk voor de huurder, maar ook voor de ambtenaar die de aanvraag beoordeelt. Tevens uniek is dat een huurderscommissie van een adviserende rol heeft bij besluiten over bomenkap. De inzet van Havensteder voor groenbehoud is lovenswaardig. Daar kunnen andere woningcorporaties beslist een voorbeeld aan nemen.

beeld: 'Hoge bomen', door Sandra de Haan. www.sandradehaan.nl

beeld: ‘Hoge bomen’, door Sandra de Haan. www.sandradehaan.nl

Sandra de Haan is bestuurslid van Stichting de Bomenridders. De Bomenridders zetten zich in voor behoud van bomen en ander groen in en om Rotterdam. Zij houden de publicaties van aangevraagde kapvergunningen bij en informeren omwonenden. Die ondersteunen ze desgevraagd in hun bezwaar tegen bomenkap. Als er vanwege herinrichting van de buitenruimte bomen gekapt moeten worden gaan ze in overleg met de betrokken partijen om te proberen te bereiken dat er boombesparende technieken worden toegepast of dat bomen verplant worden. Via de website en social media proberen ze het boombewustzijn in de stad te vergroten. Momenteel werkt de stichting aan een Google-kaart waar alle bijzondere bomen in particulier bezit op te vinden zijn, waaronder opvallend veel Vreewijkse bomen. Naast stichtingsbestuurslid is Sandra de Haan ook illustrator en cartoonist.